|
■物件No.shin_1671 ブランノワール■
|
|
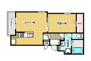
種別/間取
|
アパート/1LDK |
備考/コメント
|
|
沿 線
|
阪神本線 尼崎駅 徒歩16分 |
閑静な住宅街、インターネット使用料無料、オール角部屋設計、設備充実アパートです。 |
|
住 所
|
尼崎市東難波町3 |
|
面 積
|
35.02〜40.02m2
|
|
築 年 数
|
2026年3月 木造 |
家 賃
|
|
保 証/敷 金
|
0円 |
|
|
礼 金/敷 引
|
1カ月 |
|
共 益 費
|
4000円 |
|
設 備
|
2口コンロ,3点給湯,IHクッキングヒーター,TVインターホン,ウォークインクローゼット,エアコン,カウンターキッチン,システムキッチン,シャワー,シャワー付洗面台,シューズボックス,トイレ有,ネット使用料不要,バス・トイレ別,バス有,フローリング,温水洗浄便座,給湯,高速ネット対応,室内洗濯機置場,洗面化粧台,洗面所にドア,洗面所独立,洗面台,全居室フローリング,脱衣所,追い焚き風呂,浴室乾燥,宅配BOX,敷地内ゴミ置き場 |
| TEL06-4868-8680 |
TEL06-4869-3993 |
| TEL06-6470-3993 |
TEL06-6422-3913 |
| TEL06-4869-3994 |
|
|
|