|
■物件No.shin_1667 フジパレス阪急武庫之荘駅東2番館■
|
|
種別/間取
|
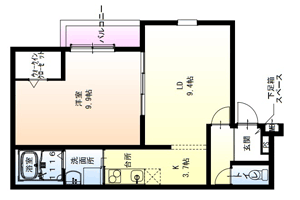
アパート/1LDK |
備考/コメント
|
|
沿 線
|
阪急線 武庫之荘駅 徒歩11分 |
設備充実物件です。WiFi無料、木造住宅ですが全部屋角部屋設計で音漏れ軽減、広々とした1LDKタイプです。 |
|
住 所
|
尼崎市上ノ島町1 |
|
面 積
|
40.13〜50.01m2
|
|
築 年 数
|
2026年4月 木造 |
家 賃
|
|
保 証/敷 金
|
0円 |
|
|
礼 金/敷 引
|
12万円〜13万円 |
|
共 益 費
|
5800円 |
|
設 備
|
2口コンロ,3点給湯,BS,CATV,CS,IHクッキングヒーター,TVインターホン,エアコン,クローゼット,システムキッチン,シャワー,シャワー付洗面台,トイレ有,ネット使用料不要,バス・トイレ別,バス有,フローリング,温水洗浄便座,給湯,室内洗濯機置場,洗面化粧台,洗面所にドア,洗面所独立,洗面台,脱衣所,浴室乾燥,宅配BOX,敷地内ゴミ置き場 |
| TEL06-4868-8680 |
TEL06-4869-3993 |
| TEL06-6470-3993 |
TEL06-6422-3913 |
| TEL06-4869-3994 |
|
|
|