|
■物件No.shin_1664 Cocon Grandjour 武庫之荘西■
|
|
種別/間取
|
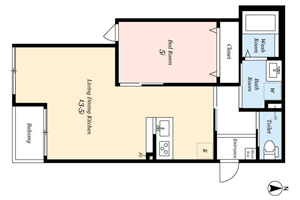
アパート/1LDK |
備考/コメント
|
|
沿 線
|
阪急線 武庫之荘駅 徒歩7分 |
全部屋角部屋設計、武庫之荘駅まで徒歩7分の丁度いい立地、設備充実の1LDKタイプです。 |
|
住 所
|
尼崎市武庫之荘西2 |
|
面 積
|
39.33〜42.99m2
|
|
築 年 数
|
2026年3月 木造 |
家 賃
|
|
保 証/敷 金
|
0円 |
|
|
礼 金/敷 引
|
1.5ヶ月 |
|
共 益 費
|
10000円 |
|
設 備
|
2口コンロ,3点給湯,TVインターホン,エアコン,クローゼット,システムキッチン,シャワー,シャワー付洗面台,シューズボックス,トイレ有,ネット使用料不要,バス・トイレ別,バス有,温水洗浄便座,給湯,光ファイバー,室内洗濯機置場,洗面化粧台,洗面所にドア,洗面所独立,全居室フローリング,全居室収納,脱衣所,浴室乾燥,宅配BOX,敷地内ゴミ置き場 |
| TEL06-4868-8680 |
TEL06-4869-3993 |
| TEL06-6470-3993 |
TEL06-6422-3913 |
| TEL06-4869-3994 |
|
|
|