|
■物件No.shin_1641 クリエオーレ崇徳院■
|
|
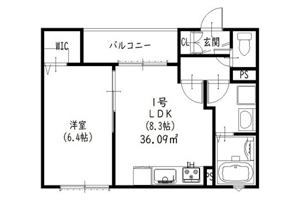
種別/間取
|
アパート/1LDK〜2LDK |
備考/コメント
|
|
沿 線
|
阪神本線 尼崎センタープール前駅 徒歩10分 |
子供1階のみ可、ペット飼育1階のみ可、お部屋設備も充実、原付バイクから中型バイクまで駐車できますよ。 |
|
住 所
|
尼崎市崇徳院2 |
|
面 積
|
31.59〜46.6m2
|
|
築 年 数
|
2025年11月 木造 |
家 賃
|
|
保 証/敷 金
|
0円 |
73,000円〜103,000円
|
|
礼 金/敷 引
|
1ヶ月 |
|
共 益 費
|
5000円 |
|
設 備
|
2口コンロ,3点給湯,IHクッキングヒーター,TVインターホン,ウォークインクローゼット,エアコン,システムキッチン,シャワー,シャワー付洗面台,シューズボックス,トイレ有,ネット使用料不要,バス・トイレ別,バス有,フローリング,温水洗浄便座,給湯,光ファイバー,高速ネット対応,室内洗濯機置場,洗面化粧台,洗面所にドア,洗面所独立,洗面台,全居室フローリング,脱衣所,暖房便座,追い焚き風呂,敷地内ゴミ置き場 |
| TEL06-4868-8680 |
TEL06-4869-3993 |
| TEL06-6470-3993 |
TEL06-6422-3913 |
| TEL06-4869-3994 |
|
|
|